Kinvaro L-80 Parallel Lift System (430mm-600mm)
SKU: F152145253201Description
Enjoy the convenience of a heavy-duty parallel lift system for upward-opening cabinet doors (flaps) made of wood, panel or aluminum. The KINVARO L-80 offers a smooth, stay-put motion and soft-close function, allowing for cornices/lights, with precise 3D adjustment (height, side, angle) for perfect alignment and tool-free clip fitting.
Features:
- Adjustable spring force
- Extremely smooth movement
- Holds flap securely in any position
- Integrated adjustable closing damper
- Fast, tool-free clip fitting of the front
- Extremely strong • Weight 1.9 to 14.6 kg
- Allows the use of cornices, pelmets and attached lights
- Wide range of applications for many different flap materials
- Pre-assembled Euro screws and positioning pins for easy fixture to the side wall
- Flap 3-dimensionally adjustable – height, side, angle: direct adjustment ±1.5 mm
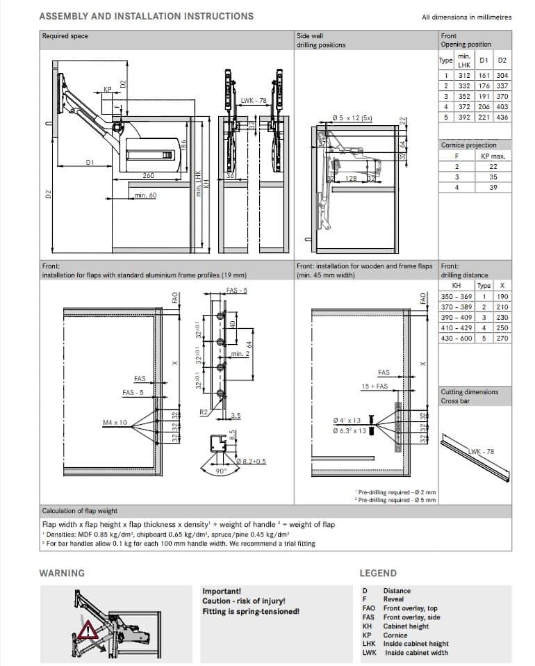
Main Product Features
Please Login to view your pricing
Parallel Lift SpecificationsInstallation Instructions







